Проектирование вентиляции
Подбор вентиляции
Узнайте стоимость оборудования и монтажа системы вентиляции, ответив на 5 простых вопросовКак работает наша компания
+7 (812) 448-53-62 (Санкт-Петербург)
+7 (495) 109-33-43 (Москва)
+7 (800) 777-84-50 (Регионы)
или заявка на сайте
Лучшие предложения
Преимущества работы с компанией ЭлВент
|
Оформите заявку на сайте, мы свяжемся с вами в ближайшее время и ответим на все интересующие вопросы.
|
Заказать услугу
|
Если вы хотите, чтобы в вашем помещении, доме, квартире или офисе были соблюдены все необходимые санитарные нормы, с заботой о здоровье людей и долговечности конструктивных и отделочных элементов, вам требуется обустроить на вверенной территории хорошую вентиляцию. При этом делать проект системы вентиляции своими руками настоятельно не рекомендуется, поскольку ни собственная смекалка, ни советы из интернета не помогут вам достичь максимально качественного и тщательно выверенного результата обустройства вентиляционных систем. Только профессиональные специалисты нашей компании способны заняться расчетом и проектированием вентиляции дома, взяв в расчет законодательные требования и нормативы, а также возможные пожелания заказчика.
Разработка грамотного проекта вентиляции и кондиционирования поможет достичь сразу нескольких важных преимуществ.
- Правильный выбор оборудования, обоснованный с точки зрения насущных необходимостей и нормативных требований.
- Правильный монтаж оборудования, особенности которого просчитываются именно на этапе проектирования систем вентиляции.
- Высокие сроки службы, а также высокая эффективность вентиляционной схемы, чего удается достичь за счет предыдущих пунктов.
- Соответствие проекта вентиляции частного дома (квартиры, офиса и т.д.) санитарным и противопожарным нормам, с возможностью включения в проект всех необходимых противопожарных элементов (дымоотводы, дымоуловители и т.д.). В идеале, данный момент должен согласовываться с пожарной и санитарной инспекцией.
- Энергосбережение и экономия, достигаемые за счет значительного сокращения расходов на электричество и отопление, со сроками окупаемости спроектированной системы в ближайшем будущем. Особого эффекта экономии удается достичь в том случае, если проектирование вентиляции и кондиционирования заказывается одновременно с проектированием отопительной системы.
- Возможность реконструкции и модернизации вентиляционных систем, которые уже были установлены на объекте.
Перед тем, как приступать к проектированию и монтажу вентиляции, необходимо провести ряд предпроектных работ, которые будут непосредственным образом отражаться на создаваемом проекте. При этом существует два возможных варианта развития событий.
- Наличие у заказчика архитектурных чертежей или дизайн-проекта. В рамках составления проекта вентиляции частного дома, данная документация позволит быстро и правильно проработать принципиальную схему воздуховодной разводки, а также размещения вентиляционного оборудования с учетом функционала помещения, нагрузки на воздуховод и других существенных деталей.
- Отсутствие у заказчика архитектурных чертежей. При отсутствии соответствующей документации, в рамках разработки проекта системы вентиляции специалистам придется оценивать состояние объекта самостоятельно, проводя замеры, составляя планы и фиксируя результаты инспекции в проектных документах. При этом заказчик должен будет принять непосредственное участие в оценочных работах, по возможности отвечая на вопросы и выражая свои пожелания по составляемому проекту вентиляции и кондиционирования.
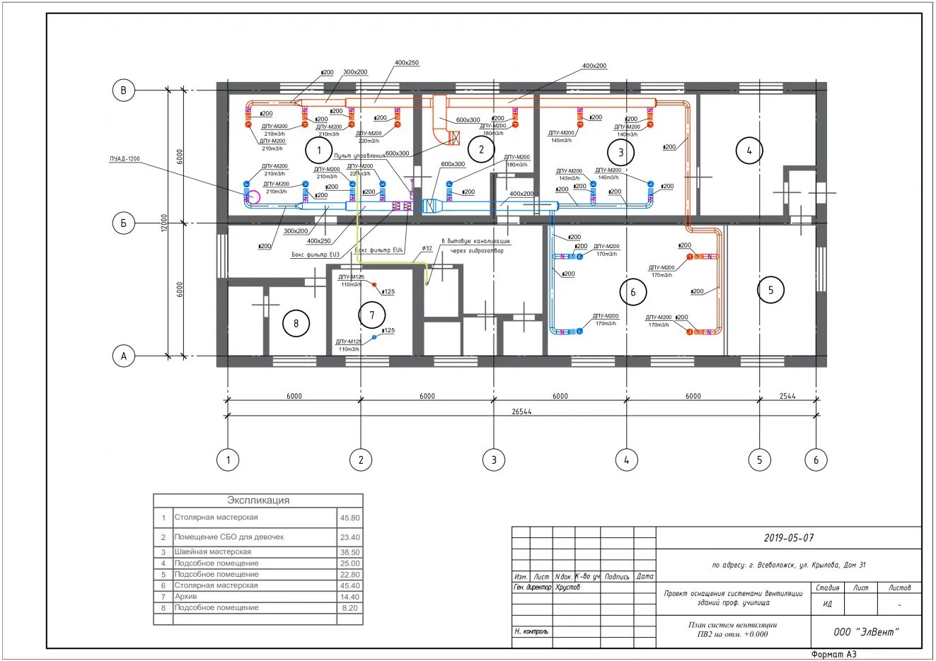
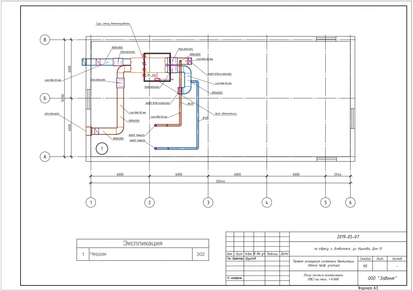
Примеры наших проектов
К работам, проводимым до начала проектирования и монтажа вентиляции, также относится консультативный момент, обозначение примерных бюджетных рамок и задач, которых нужно достичь в рамках обустройства вентиляционной системы. Учитываются и эстетические пожелания заказчика, касательные проектирования вентиляции дома.
По итогам предпроектного комплекса мероприятий будут проведены все необходимые расчеты воздухообменных, аэродинамических и акустических показателей, с проработкой схем размещения оборудования и вентиляционных трасс. В состав итоговой документации по проектированию системы вентиляции войдет эскизный и инженерный проект, проект интеграции вентиляционного оборудования с другим оборудованием на объекте, монтажная документация, спецификации. Также, в пакет документов проектирования вентиляции и кондиционирования включается подробная смета составляемого проекта.
|
Оформите заявку на сайте, мы свяжемся с вами в ближайшее время и ответим на все интересующие вопросы.
|
Заказать услугу
|
-
Системы вентиляции
-
Проектирование
- Проектирование вентиляции для производственных зданий
- Проектирование вентиляции в квартире
- Проектирование систем вентиляции
- Проектирование и монтаж вентиляции
- Проектирование вентиляции ресторана
- Проектирование вентиляции и кондиционирования
- Проектирование вентиляции в частном загородном доме
- Проектирование вентиляции бассейна
- Проектирование вентиляции
- Проект вентиляционной системы для серверной
- Проект вентиляционной системы для салона красоты
- Проект вентиляционной системы для медицинского центра
- Проект вентиляционной системы для гаража
- Нормативные требования к современным вентиляционным системам
- Как составить проект вентиляции фитнес-центра?
- Как составить проект вентиляции стоматологии?
- Как составить проект вентиляции склада?
- Как составить проект вентиляции офиса?
- Как составить проект вентиляции клуба или кинотеатра?
- Как составить проект вентиляции гостиницы?
- Вентиляция здания
- Поставка оборудования
- Производство фильтров
-
Монтаж вентиляции
- Монтаж вентиляции в многоквартирном доме, цена Санкт-Петербурге
- Проектирование и монтаж воздуховодов вентиляции, цена Санкт-Петербурге
- Установка в гостиницах, отелях и хостелах
- Проектирование и монтаж в торговом центре ТРК, цена Санкт-Петербурге
- Монтаж противодымной вентиляции
- Проектирование и монтаж приточно-вытяжной системы, цена Санкт-Петербурге
- Монтаж системы вентиляции в квартире
- Установка приточной системы вентиляции
- Проектирование для жилых зданий и помещений
- Проектирование для кинотеатра под ключ
- Проектирование вентиляции постирочных
- Проектирование помещения архива под ключ
- Вытяжная вентиляция для коттеджей, цены
- Проектирование для кафе под ключ
- Монтаж вытяжной вентиляции в кабинете, цена Санкт-Петербурге
- Проектирование вентиляции дома из кирпича
- Проектирование вентиляции для одноэтажного дома
- Проектирование вентиляции для каркасного дома, цены
- Монтаж вытяжной вентиляции дома из газобетона
- Проектирование вентиляции для двухэтажного дома
- Проектирование вентиляции для больниц и поликлиник
- Проектирование вентиляции в бане под ключ
- Приточно-вытяжная система вентиляции в офисе
- Приточно-вытяжная вентиляция для ресторана
- Приточно-вытяжная вентиляция в бассейне, цена Санкт-Петербурге
- Монтаж система вентиляции столовой под ключ, цена Санкт-Петербурге
- Монтаж систем вентиляции для складов под ключ
- Монтаж систем вентиляции в стоматологии, цена Санкт-Петербурге
- Установка систем вентиляции на производстве, цена Санкт-Петербурге
- Монтаж промышленных систем вентиляции в Санкт-Петербурге
- Установка приточно-вытяжной системы вентиляции в Санкт-Петербурге
- Монтаж и установка принудительной вентиляции в доме
- Монтаж и установка вентиляции для продовольственного магазина
- Расчет вытяжной вентиляции спортзала (фитнес-клуба)
- Монтаж вентиляции на производстве под ключ, цена Санкт-Петербурге
- Монтаж вентиляции в парикмахерской и салоне красоты.
- Проектирование вентиляции в панельном доме, цена Санкт-Петербурге
- Монтаж и проектирование вентиляции в детском саду
- Монтаж вентиляции. Стоимость услуг установки, под ключ в Санкт-Петербурге
- Монтаж вентиляции для ночных клубов и танцевальных залов
- Проектирование и монтаж вентиляции для автостоянок, цена Санкт-Петербурге
- Проектирование и монтаж вентиляции для автомоек под ключ
- Калькулятор и расчет стоимости работ по монтажу
- Для котельной
- Для загородного дома
- Для дачи
- Для гаража
- Горячий цех
- Вентиляция серверной
- Вентиляция под ключ
- Вентиляция овощехранилищ под ключ в Санкт-Петербурге
- Вентиляция на предприятиях общественного питания Санкт-Петербурге
- Вентиляция в новостройке
-
Обслуживание систем вентиляции
- Сервисное обслуживание приточно-вытяжной установки от 1000 до 2000 м³
- Сервисное обслуживание приточно-вытяжной установки до 1000 м³
- Техническое и сервисное обслуживание системы вентиляции в квартире Санкт-Петербурге: цена и стоимость работ
- Техническое и сервисное обслуживание систем промышленной вентиляции и вентиляционного оборудования Санкт-Петербурге
- Техническое и сервисное обслуживание приточной системы вентиляции Санкт-Петербурге: цена и стоимость работ
- Техническое и сервисное обслуживание приточно-вытяжной системы вентиляции Санкт-Петербурге: цена и стоимость работ
- Сервисное и техническое обслуживание вентиляции в Санкт-Петербурге: цена, стоимость и периодичность работ
- Ремонт
-
Проектирование
-
Системы кондиционирования
-
Обслуживание кондиционеров
- Чистка кондиционеров в Санкт-Петербурге от компании ЭлВент: сколько стоит почистить кондиционер, цена
- Чистка и дренаж сплит-системы в Санкт-Петербурге: стоимость услуги
- Чистка и дренаж внутреннего блока кондиционера и сплит систем
- Чистка дренажа кондиционера, как прочистить дренажную трубку сплит-системы
- Чистка внешнего блока кондиционера и дренаж наружного блока сплит систем в Санкт-Петербурге
- Техническое обслуживание и сервис сплит-систем, мульти-сплит: стоимость техобслуживания сплитов в Санкт-Петербурге
- Сервисное и техническое обслуживание кондиционеров в Санкт-Петербурге
- Сервисное и техническое обслуживание климатического оборудования, систем и техники в Санкт-Петербурге
- Сервис и техническое обслуживание систем кондиционирования воздуха в Санкт-Петербурге
- Заправка сплит-систем фреоном в Санкт-Петербурге от компании ЭлВент: сколько стоит заправить сплит, цена
- Заправка кондиционера фреоном от компании ЭлВент в Санкт-Петербурге: стоимость услуг, цена
- Заправка домашних бытовых кондиционеров фреоном в квартире от компании ЭлВент: сколько стоит заправить, цена
-
Ремонт и диагностика
- Прайс и стоимость работ Диагностика и ремонт кондиционеров в Санкт-Петербурге: цена, стоимость услуг
- Диагностика и срочный ремонт кондиционеров в Санкт-Петербурге: цена, стоимость услуг
- Диагностика и ремонт систем кондиционирования в Санкт-Петербурге: цена, стоимость услуг
- Диагностика и ремонт мульти сплит-систем в Санкт-Петербурге: цена, стоимость услуг
- Диагностика и ремонт бытовых домашних кондиционеров в Санкт-Петербурге: цена, стоимость услуг
- Прайс
- Монтаж кондиционирования
- Проектирование
- Калькулятор
- Согласование установки кондиционеров
-
Обслуживание кондиционеров
- Автоматизация АОВ
- Системы холодоснабжения
- Алмазное бурение
- Установка бризера
- Установка кондиционера





