Как составить проект вентиляции офиса?
Подбор вентиляции
Узнайте стоимость оборудования и монтажа системы вентиляции, ответив на 5 простых вопросовКак работает наша компания
+7 (812) 448-53-62 (Санкт-Петербург)
+7 (495) 109-33-43 (Москва)
+7 (800) 777-84-50 (Регионы)
или заявка на сайте
Лучшие предложения
Преимущества работы с компанией ЭлВент
|
Оформите заявку на сайте, мы свяжемся с вами в ближайшее время и ответим на все интересующие вопросы.
|
Заказать услугу
|
Грамотная организация вентиляционной схемы для офисных зданий является достаточно сложной задачей, подходить к которой нужно со всей ответственностью. Состав атмосферы офисных помещений будет определять комфортабельность рабочих условий для всех сотрудников, а также возможность сохранения здоровья для персонала. Проектирование офисной вентиляции должно осуществляться в соответствии с требованиями СНиП, а также с оглядкой на актуальные наработки, касающиеся рабочей эргономики.
Современные проекты офисной вентиляции разрабатываются в соответствии с двумя распространенными принципами. Либо делают «как надо», либо «с оглядкой на выделенный бюджет». Нормативные документы предоставляют довольно четкие формулировки. Но методики расчета, привязанные к графикам рабочего процесса, все же оставляют место для возможности изменить аппаратную насыщенность вентиляционной схемы в обширном диапазоне. В данной статье мы предоставим подробную информацию по организации офисных вентиляционных схем, позволяющих составить правильное техзадание и обеспечить высочайшую работоспособность офисных сотрудников, без оглядки на погодные условия.
Виды офисной вентиляции
Офисные помещения неподготовленным людям могут казаться похожими друг на друга. Но проектировщик видит в них существенную разницу. К примеру, в рамках одного офисного здания могут наблюдаться небольшие помещения на одного-двух сотрудников, а могут присутствовать серьезные залы, в которых одновременно работают десятки офисных служащих. Так или иначе, общие типы использующихся вентиляционных схем будут полностью совпадать с принятой классификацией.
- Системы естественного воздухообмена, основывающиеся на процессах инфильтрации через оконные блоки и использовании вытяжных каналов, располагающихся в рекреационных зонах.
- Системы естественного воздухообмена, дополненные вспомогательным вентиляционным оборудованием.
- Системы механического воздухообмена.
- Системы механического воздухообмена с оборудованием для кондиционирования воздушных масс.
Основные нормы и требования воздухообмену современных офисов прописаны в СНиП 2.09.04.87, а также в СНиП 2.04.05.91. Укажем наиболее важные требования.
- Интенсивность воздухообмена (обновление воздушной массы) в рабочей зоне для офисных помещений должна составлять от 60 кубометров воздуха в час из расчета на одного сотрудника.
- Если офис предназначается для одного сотрудника, то интенсивность воздухообмена должна составлять 50 кубометров в час.
- В приемных поддерживается уровень воздухообмена от 40 кубометров в час и выше.
- В актовых залах допустимая интенсивность воздухообмена составляет 30 кубометров в час.
- В курительных зонах поддерживается воздухообмен на уровне от 100 кубометров в час.
- В санитарных комнатах воздухообмен должен составлять от 75 кубометров в час.
В центральной части офисного помещения температура воздуха должна составлять 22-24 градуса Цельсия, при уровне влажности в пределах 40-60%.
Кратность воздухообмена будет определяться функциональным назначением того или иного офисного помещения, а также конкретным температурным режимом. Обычно для современных офисов ориентируются на показатель кратности воздухообмена равный трем. В нынешних реалиях необходимо учитывать тот факт, что подавляющее большинство офисов оснащается герметичными стеклопакетами. И использование одной только естественной вентиляции для достижения нормативных требований воздухообмена не представляется возможным. Так что, задумываясь о выборе вентиляционной системы для офисных помещений, необходимо ориентироваться на механизированные установки. Нужно также учитывать и тот факт, что в офисе будет находиться как большое число сотрудников, так и большое количество выделяющей тепло техники. Это вносит свою лепту в нарушение теплового баланса офисного помещения, что вынуждает интегрировать в работу вентиляционной системы оборудование для локального или централизованного кондиционирования воздуха.
Чтобы достигнуть необходимых нормативов, характерных для офисных помещений, рекомендуется использовать следующие типы вентиляционного оборудования.
- Моноблочные комплексы вентиляционного оборудования.
- Приточные и приточно-вытяжные установки индивидуального характера.
- Приточные канальные системы.
- Системы, интегрированные с централизованным кондиционированием и вентиляцией.
С практической точки зрения, системы вентиляции также могут подразделяться на стационарные и автономные. В стационарном исполнении вентиляционные системы монтируются на этапе строительства офисного здания, что позволяет осуществить полноценную интеграцию в инфраструктуру офиса. В автономном исполнении установки для обеспечения воздухообмена могут использоваться в случае аренды офисных помещений. Как правило, речь идет о локальных воздухообменных модулях, которые могут оснащаться рекуператорами либо поставляться без них. Заметим, что автономные решения могут использоваться не только на индивидуальном уровне, но и в целях корректировки существующих вентиляционных схем, на базе которых не удается достигнуть необходимых показателей воздухообмена.
Учет вредных факторов
В процессе проектирования вентиляционных схем для офисных помещений необходимо обязательно учитывать возможность опасного концентрирования в воздухе вредных веществ. Последствия подобной концентрации могут представлять собой не только общее снижение уровня работоспособности офисных сотрудников, но и негативное влияние на состояние здоровья работающих в помещении людей. Основным вредным фактором для современных офисных помещений является значительное повышение концентрации углекислого газа, что является гораздо более негативным явлением, в сравнении со снижением количества кислорода в атмосфере. Критически высоким уровнем концентрации СО2 в воздушной массе признается показатель выше 1 литра на кубометр.
Не лишним будет напомнить, что превышение указанного показателя может приводить к общему снижению концентрации офисных сотрудников и снижению уровня их работоспособности. Но это не главное. Долговременное воздействие больших объемов углекислого газа может приводить к возникновению патологических явлений. Так что, при проектировании вентиляционной схемы офисного характера необходимо убедиться в том, что нагнетающийся в помещения свежий воздух имеет возможность вытеснить из атмосферы соответствующие вредные примеси. Сегодня в этих целях активно внедряются специализированные вытесняющие вентиляционные схемы, гарантирующие значительное улучшение качества воздушной смеси, без существенного повышения энергетических и материальных затрат.
Вредным фактором также может признаваться количество пыли в составе воздуха, поступающего на территорию офисного помещения в процессе работы вентиляционной системы. Это особенно актуально для больших городов, где уличный воздух представляет собой достаточно грязную смесь. В современных офисах задействуется большое количество дорогостоящего оборудования, которое может быть повреждено вследствие загрязнения уличной пылью. Так что, дополнение вентиляционного проекта встраиваемыми фильтрами тонкой очистки воздуха является экономически оправданной мерой. В крупных мегаполисах встраивание в вентиляционную схему дополнительных очистителей является одной из главнейших задач проектировщика.
Помимо обозначенных факторов, при разработке вентиляционной схемы для офисных помещений необходимо учитывать явления раздражающего характера, также отражающиеся на уровне работоспособности офисных специалистов. Примерами таких факторов являются сквозняки, шумовой фон, отвлекающие запахи (к примеру, запах неустанно работающего копировального оборудования).
Важным дополнением по данному пункту является максимальная сложность прогнозирования «розы ветров» в офисном помещении после установки вентиляционного оборудования. Только профессиональный специалист может составить качественный проект, который позволит исключить присутствие ощутимых прохладных потоков воздуха внутри офиса. Холодные воздушные потоки могут привести к возникновению дискомфорта для офисных сотрудников, а в долгосрочной перспективе даже могут спровоцировать возникновение тех или иных заболеваний.
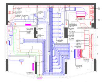
Расположение каналов вентиляционного притока
Офисные помещения предполагают пребывание на своей территории большого количества людей в течение продолжительного отрезка времени. Вследствие этого, перед проектировщиком стоит важная задача грамотного определения месторасположения приточных диффузоров. Задача эта достаточно сложная, поскольку расположение диффузоров может определить эффективность всей вентиляционной системы. Организация вентиляции приточно-вытяжного типа может проводиться в соответствии с двумя принципиально различными подходами: вытесняющим и смешивающим.
Для вытесняющих вентиляционных систем приток воздуха организовывается через диффузоры низкого расположения либо непосредственно через пол. Входящий воздушный поток будет иметь температуру 18 градусов Цельсия. При этом, попадая в теплую среду, такой поток будет конвективно двигаться по направлению к потолку, что и приведет к вытеснению вредных веществ, генерируемых в дыхательной зоне.
В смешивающих системах приточные каналы устанавливаются в районе потолка. При этом поступающий воздух будет иметь температуру 13-15 градусов, что гораздо ниже температуры воздуха в рабочей зоне. Следствием подобного хода является возможность значительно снизить уровень концентрации углекислого газа за счет смешивания холодного воздуха с офисной воздушной смесью. Здесь проектировщику необходимо уделить большое внимание вопросу грамотного расположения диффузоров, а также определения их оптимальной конструкции. Диффузоры не должны создавать те самые ощутимые холодные потоки, о которых мы говорили выше.
В соответствии с последними исследованиями, именно вытесняющие системы способны обеспечить вентиляционную систему максимально высоким качеством, что не будет сопровождаться значительным повышением энергетических затрат.
Данные для проведения вентиляционных расчетов
Перечислим организационные и технические задачи, решаемые до начала составления вентиляционного проекта под офисное помещение.
- Расчет потоков тепла и необходимых показателей воздухообмена.
- Проведение аэродинамических расчетов для транспортных каналов, касающихся как входящих, так и исходящих воздушных потоков.
- Определение оптимальных показателей мощности обогревателей, использующихся в приточной вентиляционной установке.
- Выбор правильных моделей вентиляционного оборудования.
Чтобы дать ответы на интересующие вопросы, проектировщик проводит обстоятельный разговор с заказчиком по следующим моментам.
- Расположение вентиляционной установки с учетом архитектурных особенностей офисного здания.
- Допустимая или предпочтительная топология каналов вентиляции.
- Допустимая мощность системы вентиляции.
- Возможность подключить систему к офисному водопроводу.
- Возможность монтажа дренажного оборудования или использование существующей системы.
Также, нужно будет принять в расчет температурную карту офисных помещений, что является не менее важным параметром, чем необходимые объемы воздухозамещения. Это объясняется тем, что в современных офисах используется большое количество излучающего тепло оборудования плотной комплектации. Подобные скопления оргтехники способны оказать существенное влияние на энергетическую эффективность вентиляционный системы, а также на схему расположения вентиляционных каналов.
Усложняющие факторы
Современная архитектура предполагает возможность создания объектов высоких уровней сложности. Это касается абсолютно всех зданий, включая те из них, которые относятся к офисному типу. В состав офисных помещений могут входить не только рабочие, но и вспомогательные зоны, которые требуют индивидуального подхода к организации вентиляционных схем.
Курительные зоны
Зоны для курения являются ярким примером рассматриваемой ситуации. Здесь возникает необходимость оборудования индивидуальной вытяжки, способной справиться с наполняющими помещение вредными веществами и испарениями. Конечно, в нашей стране далеко не в каждом офисе есть отдельная курительная зона. Но, если говорить о западных странах, то подобные зоны включаются в каждый офисный проект обустройства вентиляции. Норматив воздухообмена зоны для курения существенно выше стандартной нормы и может составлять до 100 кубометров в час из расчета на одного курящего сотрудника. Специальная зона для курения может находиться непосредственно в офисном помещении. В этом случае требуется оборудование воздушной завесы, позволяющей отделить курительный сектор от общей рабочей зоны.
Серверные зоны
Крупные компании размещают информационный массив данных на надежном серверном оборудовании, которое ставится в отдельных помещениях с индивидуальными требованиями к обустройству вентиляционной схемы. В частности, в подобных помещениях нужно организовать прецизионный контроль режимов влажности и температуры, с формированием выделенного вентиляционного контура. Вентиляционная схема должна входить в сопряжение с высокоточным кондиционированием, а также сопровождаться использованием фильтров тонкой очистки воздуха. Стоит ли говорить, что подобные меры приводят к существенному усложнению проектов.
Дополнительные системы автоматизации
Разрабатывая проекты вентиляционной инфраструктуры для современного здания необходимо в обязательном порядке учитывать параметр энергоэффективности. И если встроить в схему модуль автоматического управления вентиляцией, то можно серьезно сэкономить на счетах на электроэнергию. При этом достижение необходимого эффекта будет сопровождаться ориентацией на один из двух путей.
- Использование силовых установок в соответствии с показателями встроенных датчиков (колебания температуры воздуха, превышение допустимых показателей содержания углекислоты и т.д.).
- Минимальное энергопотребление вентиляционным оборудованием в вечернее и ночное время, а также в нерабочие периоды в соответствии с индивидуальным расписанием офисного учреждения.
Рекуператорные системы
Проект офисной вентиляции в подавляющем большинстве случаев представляет систему полного цикла, относящуюся к приточно-вытяжному типу. И львиная доля энергозатрат здесь будет приходиться на необходимость прогрева входящих воздушных потоков в холодное время года. Справедливым будет заметить, что для офисных помещений затраты на обогрев воздушных масс все-таки ниже, чем для нагрева воздуха в актовых залах, ресторанах и т.д. Здесь часть тепловой энергии поступает от постоянно работающего офисного оборудования. И все же, затраты на электричество достаточно высоки, поскольку необходимо достигнуть кратности воздухообмена в три единицы, а также удержать тепловой баланс на высоком уровне. Большая часть современных вентиляционных проектов для офисных помещений предусматривает использование рекуператорного оборудования, позволяющего уменьшить затраты на обогрев воздушных масс на 70-80 процентов. Отметим, что рекуператорные установки оказались насколько высокоэффективными, что сегодня их используют даже в самых бюджетных проектах систем вентиляции, составленных из кондиционеров и стеновых модулей локального характера.
|
Оформите заявку на сайте, мы свяжемся с вами в ближайшее время и ответим на все интересующие вопросы.
|
Заказать услугу
|
-
Системы вентиляции
-
Проектирование
- Проектирование вентиляции для производственных зданий
- Проектирование вентиляции в квартире
- Проектирование систем вентиляции
- Проектирование и монтаж вентиляции
- Проектирование вентиляции ресторана
- Проектирование вентиляции и кондиционирования
- Проектирование вентиляции в частном загородном доме
- Проектирование вентиляции бассейна
- Проектирование вентиляции
- Проект вентиляционной системы для серверной
- Проект вентиляционной системы для салона красоты
- Проект вентиляционной системы для медицинского центра
- Проект вентиляционной системы для гаража
- Нормативные требования к современным вентиляционным системам
- Как составить проект вентиляции фитнес-центра?
- Как составить проект вентиляции стоматологии?
- Как составить проект вентиляции склада?
- Как составить проект вентиляции офиса?
- Как составить проект вентиляции клуба или кинотеатра?
- Как составить проект вентиляции гостиницы?
- Вентиляция здания
- Поставка оборудования
- Производство фильтров
-
Монтаж вентиляции
- Монтаж вентиляции в многоквартирном доме, цена Санкт-Петербурге
- Проектирование и монтаж воздуховодов вентиляции, цена Санкт-Петербурге
- Установка в гостиницах, отелях и хостелах
- Проектирование и монтаж в торговом центре ТРК, цена Санкт-Петербурге
- Монтаж противодымной вентиляции
- Проектирование и монтаж приточно-вытяжной системы, цена Санкт-Петербурге
- Монтаж системы вентиляции в квартире
- Установка приточной системы вентиляции
- Проектирование для жилых зданий и помещений
- Проектирование для кинотеатра под ключ
- Проектирование вентиляции постирочных
- Проектирование помещения архива под ключ
- Вытяжная вентиляция для коттеджей, цены
- Проектирование для кафе под ключ
- Монтаж вытяжной вентиляции в кабинете, цена Санкт-Петербурге
- Проектирование вентиляции дома из кирпича
- Проектирование вентиляции для одноэтажного дома
- Проектирование вентиляции для каркасного дома, цены
- Монтаж вытяжной вентиляции дома из газобетона
- Проектирование вентиляции для двухэтажного дома
- Проектирование вентиляции для больниц и поликлиник
- Проектирование вентиляции в бане под ключ
- Приточно-вытяжная система вентиляции в офисе
- Приточно-вытяжная вентиляция для ресторана
- Приточно-вытяжная вентиляция в бассейне, цена Санкт-Петербурге
- Монтаж система вентиляции столовой под ключ, цена Санкт-Петербурге
- Монтаж систем вентиляции для складов под ключ
- Монтаж систем вентиляции в стоматологии, цена Санкт-Петербурге
- Установка систем вентиляции на производстве, цена Санкт-Петербурге
- Монтаж промышленных систем вентиляции в Санкт-Петербурге
- Установка приточно-вытяжной системы вентиляции в Санкт-Петербурге
- Монтаж и установка принудительной вентиляции в доме
- Монтаж и установка вентиляции для продовольственного магазина
- Расчет вытяжной вентиляции спортзала (фитнес-клуба)
- Монтаж вентиляции на производстве под ключ, цена Санкт-Петербурге
- Монтаж вентиляции в парикмахерской и салоне красоты.
- Проектирование вентиляции в панельном доме, цена Санкт-Петербурге
- Монтаж и проектирование вентиляции в детском саду
- Монтаж вентиляции. Стоимость услуг установки, под ключ в Санкт-Петербурге
- Монтаж вентиляции для ночных клубов и танцевальных залов
- Проектирование и монтаж вентиляции для автостоянок, цена Санкт-Петербурге
- Проектирование и монтаж вентиляции для автомоек под ключ
- Калькулятор и расчет стоимости работ по монтажу
- Для котельной
- Для загородного дома
- Для дачи
- Для гаража
- Горячий цех
- Вентиляция серверной
- Вентиляция под ключ
- Вентиляция овощехранилищ под ключ в Санкт-Петербурге
- Вентиляция на предприятиях общественного питания Санкт-Петербурге
- Вентиляция в новостройке
-
Обслуживание систем вентиляции
- Сервисное обслуживание приточно-вытяжной установки от 1000 до 2000 м³
- Сервисное обслуживание приточно-вытяжной установки до 1000 м³
- Техническое и сервисное обслуживание системы вентиляции в квартире Санкт-Петербурге: цена и стоимость работ
- Техническое и сервисное обслуживание систем промышленной вентиляции и вентиляционного оборудования Санкт-Петербурге
- Техническое и сервисное обслуживание приточной системы вентиляции Санкт-Петербурге: цена и стоимость работ
- Техническое и сервисное обслуживание приточно-вытяжной системы вентиляции Санкт-Петербурге: цена и стоимость работ
- Сервисное и техническое обслуживание вентиляции в Санкт-Петербурге: цена, стоимость и периодичность работ
- Ремонт
-
Проектирование
-
Системы кондиционирования
-
Обслуживание кондиционеров
- Чистка кондиционеров в Санкт-Петербурге от компании ЭлВент: сколько стоит почистить кондиционер, цена
- Чистка и дренаж сплит-системы в Санкт-Петербурге: стоимость услуги
- Чистка и дренаж внутреннего блока кондиционера и сплит систем
- Чистка дренажа кондиционера, как прочистить дренажную трубку сплит-системы
- Чистка внешнего блока кондиционера и дренаж наружного блока сплит систем в Санкт-Петербурге
- Техническое обслуживание и сервис сплит-систем, мульти-сплит: стоимость техобслуживания сплитов в Санкт-Петербурге
- Сервисное и техническое обслуживание кондиционеров в Санкт-Петербурге
- Сервисное и техническое обслуживание климатического оборудования, систем и техники в Санкт-Петербурге
- Сервис и техническое обслуживание систем кондиционирования воздуха в Санкт-Петербурге
- Заправка сплит-систем фреоном в Санкт-Петербурге от компании ЭлВент: сколько стоит заправить сплит, цена
- Заправка кондиционера фреоном от компании ЭлВент в Санкт-Петербурге: стоимость услуг, цена
- Заправка домашних бытовых кондиционеров фреоном в квартире от компании ЭлВент: сколько стоит заправить, цена
-
Ремонт и диагностика
- Прайс и стоимость работ Диагностика и ремонт кондиционеров в Санкт-Петербурге: цена, стоимость услуг
- Диагностика и срочный ремонт кондиционеров в Санкт-Петербурге: цена, стоимость услуг
- Диагностика и ремонт систем кондиционирования в Санкт-Петербурге: цена, стоимость услуг
- Диагностика и ремонт мульти сплит-систем в Санкт-Петербурге: цена, стоимость услуг
- Диагностика и ремонт бытовых домашних кондиционеров в Санкт-Петербурге: цена, стоимость услуг
- Прайс
- Монтаж кондиционирования
- Проектирование
- Калькулятор
- Согласование установки кондиционеров
-
Обслуживание кондиционеров
- Автоматизация АОВ
- Системы холодоснабжения
- Алмазное бурение
- Установка бризера
- Установка кондиционера
