Проектирование вентиляции в частном загородном доме
Подбор вентиляции
Узнайте стоимость оборудования и монтажа системы вентиляции, ответив на 5 простых вопросовКак работает наша компания
+7 (812) 448-53-62 (Санкт-Петербург)
+7 (495) 109-33-43 (Москва)
+7 (800) 777-84-50 (Регионы)
или заявка на сайте
Лучшие предложения
Преимущества работы с компанией ЭлВент
|
Оформите заявку на сайте, мы свяжемся с вами в ближайшее время и ответим на все интересующие вопросы.
|
Заказать услугу
|
При строительстве дома в приоритете обустройство отопительной системы, а также качественной вентиляции. Заказ сервиса у профессионалов из компании «ЭлВент» избавит от лишних хлопот и позволит создать надежные коммуникации.
Компания «ЭлВент» занимается установкой систем вентиляции и кондиционирования. Особенности компании:
- специализация в сегменте контроля качества воздуха;
- оказание помощи в составлении техзадания для проектирования вентиляции в частном доме;
- разработка индивидуальных проектов;
- сотрудничество только со штатными специалистами;
- выделение на каждый проект менеджера, который отвечает за каждую стадию реализации;
- большой опыт работы с различными объектами — квартирами, загородными домами, промышленными строениями.
Стоит понимать, что самостоятельное обустройство систем вентиляции и кондиционирования может привести к некорректной их работе. Обращение в неквалифицированные фирмы по монтажу такого оборудования также грозит неприятными последствиями. Система в этом случае может издавать посторонние шумы, вибрировать или вовсе станет непригодной к работе.
Компания оказывает сервис по Санкт-Петербургу вне зависимости от удаленности объекта. Также возможна установка и наладки систем в близлежащих регионах.
Особенности проекта вентиляции и кондиционирования
Все работы производятся исключительно по предварительному проекту. Его создание является своего рода страховкой:
- от проведения дополнительных работ во время монтажа системы;
- от несогласованности иных систем коммуникации;
- от изменения сроков реализации.
Профессиональный сервис — это гарантия технических решений. Опытные проектировщики создают инженерные проекты индивидуально с учетом всех нюансов.
Разработка проекта становится фундаментом для дальнейшей работы — подбора необходимого оборудования и определения стоимости. Проектирование вентиляции в частном доме включает учет всех расходных материалов, которые необходимы для установки системы. Все объекты, которые следует монтировать для корректной работы инженерной коммуникации, также учитываются в составляемом проекте.
|
Оформите заявку на сайте, мы свяжемся с вами в ближайшее время и ответим на все интересующие вопросы.
|
Заказать услугу
|
-
Системы вентиляции
-
Проектирование
- Проектирование вентиляции для производственных зданий
- Проектирование вентиляции в квартире
- Проектирование систем вентиляции
- Проектирование и монтаж вентиляции
- Проектирование вентиляции ресторана
- Проектирование вентиляции и кондиционирования
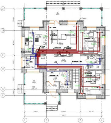
- Проектирование вентиляции в частном загородном доме
- Проектирование вентиляции бассейна
- Проектирование вентиляции
- Проект вентиляционной системы для серверной
- Проект вентиляционной системы для салона красоты
- Проект вентиляционной системы для медицинского центра
- Проект вентиляционной системы для гаража
- Нормативные требования к современным вентиляционным системам
- Как составить проект вентиляции фитнес-центра?
- Как составить проект вентиляции стоматологии?
- Как составить проект вентиляции склада?
- Как составить проект вентиляции офиса?
- Как составить проект вентиляции клуба или кинотеатра?
- Как составить проект вентиляции гостиницы?
- Вентиляция здания
- Поставка оборудования
- Производство фильтров
-
Монтаж вентиляции
- Монтаж вентиляции в многоквартирном доме, цена Санкт-Петербурге
- Проектирование и монтаж воздуховодов вентиляции, цена Санкт-Петербурге
- Установка в гостиницах, отелях и хостелах
- Проектирование и монтаж в торговом центре ТРК, цена Санкт-Петербурге
- Монтаж противодымной вентиляции
- Проектирование и монтаж приточно-вытяжной системы, цена Санкт-Петербурге
- Монтаж системы вентиляции в квартире
- Установка приточной системы вентиляции
- Проектирование для жилых зданий и помещений
- Проектирование для кинотеатра под ключ
- Проектирование вентиляции постирочных
- Проектирование помещения архива под ключ
- Вытяжная вентиляция для коттеджей, цены
- Проектирование для кафе под ключ
- Монтаж вытяжной вентиляции в кабинете, цена Санкт-Петербурге
- Проектирование вентиляции дома из кирпича
- Проектирование вентиляции для одноэтажного дома
- Проектирование вентиляции для каркасного дома, цены
- Монтаж вытяжной вентиляции дома из газобетона
- Проектирование вентиляции для двухэтажного дома
- Проектирование вентиляции для больниц и поликлиник
- Проектирование вентиляции в бане под ключ
- Приточно-вытяжная система вентиляции в офисе
- Приточно-вытяжная вентиляция для ресторана
- Приточно-вытяжная вентиляция в бассейне, цена Санкт-Петербурге
- Монтаж система вентиляции столовой под ключ, цена Санкт-Петербурге
- Монтаж систем вентиляции для складов под ключ
- Монтаж систем вентиляции в стоматологии, цена Санкт-Петербурге
- Установка систем вентиляции на производстве, цена Санкт-Петербурге
- Монтаж промышленных систем вентиляции в Санкт-Петербурге
- Установка приточно-вытяжной системы вентиляции в Санкт-Петербурге
- Монтаж и установка принудительной вентиляции в доме
- Монтаж и установка вентиляции для продовольственного магазина
- Расчет вытяжной вентиляции спортзала (фитнес-клуба)
- Монтаж вентиляции на производстве под ключ, цена Санкт-Петербурге
- Монтаж вентиляции в парикмахерской и салоне красоты.
- Проектирование вентиляции в панельном доме, цена Санкт-Петербурге
- Монтаж и проектирование вентиляции в детском саду
- Монтаж вентиляции. Стоимость услуг установки, под ключ в Санкт-Петербурге
- Монтаж вентиляции для ночных клубов и танцевальных залов
- Проектирование и монтаж вентиляции для автостоянок, цена Санкт-Петербурге
- Проектирование и монтаж вентиляции для автомоек под ключ
- Калькулятор и расчет стоимости работ по монтажу
- Для котельной
- Для загородного дома
- Для дачи
- Для гаража
- Горячий цех
- Вентиляция серверной
- Вентиляция под ключ
- Вентиляция овощехранилищ под ключ в Санкт-Петербурге
- Вентиляция на предприятиях общественного питания Санкт-Петербурге
- Вентиляция в новостройке
-
Обслуживание систем вентиляции
- Сервисное обслуживание приточно-вытяжной установки от 1000 до 2000 м³
- Сервисное обслуживание приточно-вытяжной установки до 1000 м³
- Техническое и сервисное обслуживание системы вентиляции в квартире Санкт-Петербурге: цена и стоимость работ
- Техническое и сервисное обслуживание систем промышленной вентиляции и вентиляционного оборудования Санкт-Петербурге
- Техническое и сервисное обслуживание приточной системы вентиляции Санкт-Петербурге: цена и стоимость работ
- Техническое и сервисное обслуживание приточно-вытяжной системы вентиляции Санкт-Петербурге: цена и стоимость работ
- Сервисное и техническое обслуживание вентиляции в Санкт-Петербурге: цена, стоимость и периодичность работ
- Ремонт
-
Проектирование
-
Системы кондиционирования
-
Обслуживание кондиционеров
- Чистка кондиционеров в Санкт-Петербурге от компании ЭлВент: сколько стоит почистить кондиционер, цена
- Чистка и дренаж сплит-системы в Санкт-Петербурге: стоимость услуги
- Чистка и дренаж внутреннего блока кондиционера и сплит систем
- Чистка дренажа кондиционера, как прочистить дренажную трубку сплит-системы
- Чистка внешнего блока кондиционера и дренаж наружного блока сплит систем в Санкт-Петербурге
- Техническое обслуживание и сервис сплит-систем, мульти-сплит: стоимость техобслуживания сплитов в Санкт-Петербурге
- Сервисное и техническое обслуживание кондиционеров в Санкт-Петербурге
- Сервисное и техническое обслуживание климатического оборудования, систем и техники в Санкт-Петербурге
- Сервис и техническое обслуживание систем кондиционирования воздуха в Санкт-Петербурге
- Заправка сплит-систем фреоном в Санкт-Петербурге от компании ЭлВент: сколько стоит заправить сплит, цена
- Заправка кондиционера фреоном от компании ЭлВент в Санкт-Петербурге: стоимость услуг, цена
- Заправка домашних бытовых кондиционеров фреоном в квартире от компании ЭлВент: сколько стоит заправить, цена
-
Ремонт и диагностика
- Прайс и стоимость работ Диагностика и ремонт кондиционеров в Санкт-Петербурге: цена, стоимость услуг
- Диагностика и срочный ремонт кондиционеров в Санкт-Петербурге: цена, стоимость услуг
- Диагностика и ремонт систем кондиционирования в Санкт-Петербурге: цена, стоимость услуг
- Диагностика и ремонт мульти сплит-систем в Санкт-Петербурге: цена, стоимость услуг
- Диагностика и ремонт бытовых домашних кондиционеров в Санкт-Петербурге: цена, стоимость услуг
- Прайс
- Монтаж кондиционирования
- Проектирование
- Калькулятор
- Согласование установки кондиционеров
-
Обслуживание кондиционеров
- Автоматизация АОВ
- Системы холодоснабжения
- Алмазное бурение
- Установка бризера
- Установка кондиционера
