Проектирование для жилых зданий и помещений
Подбор вентиляции
Узнайте стоимость оборудования и монтажа системы вентиляции, ответив на 5 простых вопросовКак работает наша компания
+7 (812) 448-53-62 (Санкт-Петербург)
+7 (495) 109-33-43 (Москва)
+7 (800) 777-84-50 (Регионы)
или заявка на сайте
Лучшие предложения
Преимущества работы с компанией ЭлВент
|
Оформите заявку на сайте, мы свяжемся с вами в ближайшее время и ответим на все интересующие вопросы.
|
Заказать услугу
|
Монтаж и установка систем вентиляции для жилых помещений и зданий, является приоритетным направлением работ компании «ЭлВент».
Все монтажные работы проводятся опытными бригадами точно в срок. Проводим монтаж вентиляции любой сложности по невысоким ценам.
Если у Вас возникли вопросы, Вы всегда можете обратиться к нашим специалистам по телефону +7 (812) 448-53-62 или по электронной почте spb@el-vent.ru.
Мы делаем монтаж вентиляции на любых объектах
- В квартире
- В доме
- На производстве
- Промышленные
- Приточные установки
- Приточно-вытяжная
- Для бассейнов
- Рестораны
- Офисы
- Для склада
- Для спортзала
- В гостинице
- В детском саду
- Для столовой
- Для автомойки
- Для автостоянки
- На предприятиях общественного питания
- В общественных зданиях
- Для овощехранилищ
- В стоматологии
- Для магазина
- В панельных домах
- В парикмахерской
- Для предприятий
- В клубе
- В кабинетах
- Для кафе
- В кирпичном доме
- Для архива
- Для прачечной
- Для бани
- Для кинотеатров
- Для жилых помещений и зданий
- В каркасном доме
- Для двухэтажного дома
- Для одноэтажного дома
- Для дома из газобетона
- Для больницы и поликлиники
- Для коттеджей
Система вентиляция помещений и зданий от «ЭлВент»
В качественной, бесперебойной, безопасной вентиляции нуждаются все без исключения жилые здания и помещения. Эффективные системы воздухообмена помогут обеспечить постоянное поступление чистого, обогащенного кислородом воздуха, что положительно скажется на общем самочувствии и здоровье жильцов, будет благоприятно влиять на увеличение срока службы облицовки и мебели в помещениях. В компании «ЭлВент» вы можете заказать разработку и обслуживание систем в самых различных помещениях и зданиях:
- вентиляция в доме;
- вентиляция в квартире;
- вентиляция в каркасном доме;
- вентиляция в одноэтажном доме;
- вентиляция в двухэтажном доме;
- вентиляция в доме из газобетона.
Проектирование систем вентиляции зданий
Чтобы разработать для вас проект качественной, энергоэффективной, экономичной и надежной вентиляции, наши инженеры уделят тщательное внимание изучению планировки, технических характеристик объекта. Мы предложим несколько вариантов системы, чтобы вы сделали выбор с учетом индивидуальных предпочтений к эксплуатационным особенностям вентиляции. Наша компания также решит для вас задачу подбора надежного, долговечного и удобного в использовании вентиляционного оборудования.
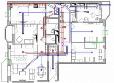
Стоит отметить, что проектирование вентиляции жилых зданий является одной из самых ответственных и сложных задач, которая стоит перед нашей компанией. В силу функционального и архитектурного разнообразия современных зданий, специалисты, занимающиеся разработкой вентиляции жилых помещений, не всегда имеют возможность опираться на типовые схемы и проекты. Приходится разрабатывать индивидуальный проект, который будет учитывать большое количество различных переменных, не забывая придерживаться базовых принципов расчета вентиляции жилых зданий в плане соблюдения необходимого воздушного баланса.
Первым делом нужноразработать техническое задание, в котором будут четко обозначены требования к необходимому типу и объему воздухообмена, обеспечиваемого путем налаживания вентиляции жилых помещений различного функционального назначения. К примеру, в стандартных жилых комнатах должен быть постоянный приток воздуха, на кухне и в ванной – постоянная естественная вытяжка, а в прихожих и коридорах – свободное перемещение воздушных масс. Все это прописано в российских нормативных документах, регламентирующих вопросы воздухообмена при обустройстве вентиляции жилых и общественных зданий.
Правильно составленное техническое задание поможет разработать оптимальную схему вентиляции жилого здания, расчет и согласование которой должно быть осуществлено до момента обустройства внутренней отделки помещений. Если сделать это на более позднем этапе, то могут возникнуть дополнительные в проблемы с процессом вписывания элементов вентиляции жилых зданий в обустроенный интерьер. Так или иначе, в процессе проектирования наши специалисты постараются использовать минимально возможное количество элементов и узлов, что позволит обеспечить вентиляции жилых и общественных зданий меньшую подверженность поломкам, простоту обслуживания, понятность для заказчика, а также гармоничное вписывание в интерьерный дизайн.
Монтаж вентиляции в жилом доме
Процесс установки системы вентиляции в жилых зданиях и помещениях – сложная многоэтапная работа, к выполнению которой специалисты «ЭлВент» приступят сразу после подписания договора с клиентом. Наши мастера позаботятся о том, чтобы в процессе установки сделать все технические характеристики системы соответствующими нормам ГОСТов и пожеланиям клиентов. По окончании монтажа вы получите официальную гарантию на оборудование и выполненные работы.
Закажите проект вентиляции здания у «ЭлВент»
Закажите услуги по разработке проекта, установке и обслуживанию системы вентиляции для жилых зданий и помещений. Оставляйте заявку любым удобным для вас способом – по телефону, в режиме онлайн или в нашем офисе. Команда опытных профессионалов «ЭлВент» всегда работает качественно, старательно, стремится сделать каждую систему вентиляции эффективной, безопасной, экономичной, на 100% соответствующей всем пожеланиям и предпочтениям клиентов.
|
Оформите заявку на сайте, мы свяжемся с вами в ближайшее время и ответим на все интересующие вопросы.
|
Заказать услугу
|
-
Системы вентиляции
-
Проектирование
- Проектирование вентиляции для производственных зданий
- Проектирование вентиляции в квартире
- Проектирование систем вентиляции
- Проектирование и монтаж вентиляции
- Проектирование вентиляции ресторана
- Проектирование вентиляции и кондиционирования
- Проектирование вентиляции в частном загородном доме
- Проектирование вентиляции бассейна
- Проектирование вентиляции
- Проект вентиляционной системы для серверной
- Проект вентиляционной системы для салона красоты
- Проект вентиляционной системы для медицинского центра
- Проект вентиляционной системы для гаража
- Нормативные требования к современным вентиляционным системам
- Как составить проект вентиляции фитнес-центра?
- Как составить проект вентиляции стоматологии?
- Как составить проект вентиляции склада?
- Как составить проект вентиляции офиса?
- Как составить проект вентиляции клуба или кинотеатра?
- Как составить проект вентиляции гостиницы?
- Вентиляция здания
- Поставка оборудования
- Производство фильтров
-
Монтаж вентиляции
- Монтаж вентиляции в многоквартирном доме, цена Санкт-Петербурге
- Проектирование и монтаж воздуховодов вентиляции, цена Санкт-Петербурге
- Установка в гостиницах, отелях и хостелах
- Проектирование и монтаж в торговом центре ТРК, цена Санкт-Петербурге
- Монтаж противодымной вентиляции
- Проектирование и монтаж приточно-вытяжной системы, цена Санкт-Петербурге
- Монтаж системы вентиляции в квартире
- Установка приточной системы вентиляции
- Проектирование для жилых зданий и помещений
- Проектирование для кинотеатра под ключ
- Проектирование вентиляции постирочных
- Проектирование помещения архива под ключ
- Вытяжная вентиляция для коттеджей, цены
- Проектирование для кафе под ключ
- Монтаж вытяжной вентиляции в кабинете, цена Санкт-Петербурге
- Проектирование вентиляции дома из кирпича
- Проектирование вентиляции для одноэтажного дома
- Проектирование вентиляции для каркасного дома, цены
- Монтаж вытяжной вентиляции дома из газобетона
- Проектирование вентиляции для двухэтажного дома
- Проектирование вентиляции для больниц и поликлиник
- Проектирование вентиляции в бане под ключ
- Приточно-вытяжная система вентиляции в офисе
- Приточно-вытяжная вентиляция для ресторана
- Приточно-вытяжная вентиляция в бассейне, цена Санкт-Петербурге
- Монтаж система вентиляции столовой под ключ, цена Санкт-Петербурге
- Монтаж систем вентиляции для складов под ключ
- Монтаж систем вентиляции в стоматологии, цена Санкт-Петербурге
- Установка систем вентиляции на производстве, цена Санкт-Петербурге
- Монтаж промышленных систем вентиляции в Санкт-Петербурге
- Установка приточно-вытяжной системы вентиляции в Санкт-Петербурге
- Монтаж и установка принудительной вентиляции в доме
- Монтаж и установка вентиляции для продовольственного магазина
- Расчет вытяжной вентиляции спортзала (фитнес-клуба)
- Монтаж вентиляции на производстве под ключ, цена Санкт-Петербурге
- Монтаж вентиляции в парикмахерской и салоне красоты.
- Проектирование вентиляции в панельном доме, цена Санкт-Петербурге
- Монтаж и проектирование вентиляции в детском саду
- Монтаж вентиляции. Стоимость услуг установки, под ключ в Санкт-Петербурге
- Монтаж вентиляции для ночных клубов и танцевальных залов
- Проектирование и монтаж вентиляции для автостоянок, цена Санкт-Петербурге
- Проектирование и монтаж вентиляции для автомоек под ключ
- Калькулятор и расчет стоимости работ по монтажу
- Для котельной
- Для загородного дома
- Для дачи
- Для гаража
- Горячий цех
- Вентиляция серверной
- Вентиляция под ключ
- Вентиляция овощехранилищ под ключ в Санкт-Петербурге
- Вентиляция на предприятиях общественного питания Санкт-Петербурге
- Вентиляция в новостройке
-
Обслуживание систем вентиляции
- Сервисное обслуживание приточно-вытяжной установки от 1000 до 2000 м³
- Сервисное обслуживание приточно-вытяжной установки до 1000 м³
- Техническое и сервисное обслуживание системы вентиляции в квартире Санкт-Петербурге: цена и стоимость работ
- Техническое и сервисное обслуживание систем промышленной вентиляции и вентиляционного оборудования Санкт-Петербурге
- Техническое и сервисное обслуживание приточной системы вентиляции Санкт-Петербурге: цена и стоимость работ
- Техническое и сервисное обслуживание приточно-вытяжной системы вентиляции Санкт-Петербурге: цена и стоимость работ
- Сервисное и техническое обслуживание вентиляции в Санкт-Петербурге: цена, стоимость и периодичность работ
- Ремонт
-
Проектирование
-
Системы кондиционирования
-
Обслуживание кондиционеров
- Чистка кондиционеров в Санкт-Петербурге от компании ЭлВент: сколько стоит почистить кондиционер, цена
- Чистка и дренаж сплит-системы в Санкт-Петербурге: стоимость услуги
- Чистка и дренаж внутреннего блока кондиционера и сплит систем
- Чистка дренажа кондиционера, как прочистить дренажную трубку сплит-системы
- Чистка внешнего блока кондиционера и дренаж наружного блока сплит систем в Санкт-Петербурге
- Техническое обслуживание и сервис сплит-систем, мульти-сплит: стоимость техобслуживания сплитов в Санкт-Петербурге
- Сервисное и техническое обслуживание кондиционеров в Санкт-Петербурге
- Сервисное и техническое обслуживание климатического оборудования, систем и техники в Санкт-Петербурге
- Сервис и техническое обслуживание систем кондиционирования воздуха в Санкт-Петербурге
- Заправка сплит-систем фреоном в Санкт-Петербурге от компании ЭлВент: сколько стоит заправить сплит, цена
- Заправка кондиционера фреоном от компании ЭлВент в Санкт-Петербурге: стоимость услуг, цена
- Заправка домашних бытовых кондиционеров фреоном в квартире от компании ЭлВент: сколько стоит заправить, цена
-
Ремонт и диагностика
- Прайс и стоимость работ Диагностика и ремонт кондиционеров в Санкт-Петербурге: цена, стоимость услуг
- Диагностика и срочный ремонт кондиционеров в Санкт-Петербурге: цена, стоимость услуг
- Диагностика и ремонт систем кондиционирования в Санкт-Петербурге: цена, стоимость услуг
- Диагностика и ремонт мульти сплит-систем в Санкт-Петербурге: цена, стоимость услуг
- Диагностика и ремонт бытовых домашних кондиционеров в Санкт-Петербурге: цена, стоимость услуг
- Прайс
- Монтаж кондиционирования
- Проектирование
- Калькулятор
- Согласование установки кондиционеров
-
Обслуживание кондиционеров
- Автоматизация АОВ
- Системы холодоснабжения
- Алмазное бурение
- Установка бризера
- Установка кондиционера


