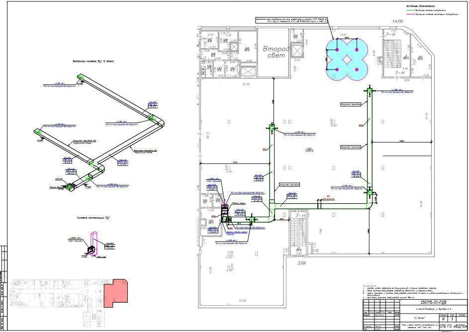
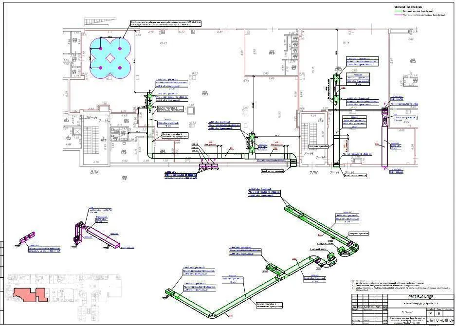
Выполняем работы по противодымной вентиляции (дымоудалению, установке противопожарных клапанов) в торговом центре «Сенная», строго в соответствии с проектом и требованиями нормативных документов. Это обеспечивает безопасность людей при пожаре, минимизирует ущерб от дыма и создаёт условия для эффективной эвакуации.
Ключевые моменты:
Ключевые моменты:
- вытяжная система (дымоудаление);
- приточная система;
- противопожарные клапаны;
- датчики дыма;
- системы управления.
Заказать проект
Задать вопрос
|
Оформите заявку на сайте, мы свяжемся с вами в ближайшее время и ответим на все интересующие вопросы.
|
Заказать проект
|
-
Рестораны
- KFC Культуры 21
- Rostic's Выборгское шоссе
- Ресторан "Bao Baozi"
- Rostic's замена канального вентилятора
- Rostic's Великий Новгород
- Rostic's на Индустриальном проспекте
- Суши-бар «Сушипокебоул»
- Rostic's на просп. Культуры
- Rostic's ТЦ "Нарва"
- Красное Село "Додо Пицца"
- просп. Культуры Rostic's Быстрое питание
- "Додо Пицца" монтаж сплит-системы
- Rostic's на Кушелевской дороге
- Бар «Контакт» на Бухарестской ул
- Rostic's на Ленинском проспекте
- Rostic's на Гаккелевской улице
- Бар «Контакт» на Невском проспекте
- Rostic's Юго-Запад
- "Додо Пицца" Красное село
- KFC Гатчина "ТО-2"
- Rostic's Пулково
- Додо Пицца на Лиговском проспекте
- Rostic's замена теплообменника (Шушары)
- Ресторан Rostic's замена ВТЗ
- Евразия ПИК
- Ростикс ВО ТЦ Остров
- Rostic's на Народной 100
- Rostic's Кудрово
- Rostic's на Балканском ТО-2
- КФС Великий Новгород
- Rostic's "Гранд Каньон"
- Rostic's на Софийской ТО
- КФС Кушелевка
- Ростикс Косыгина
- Контакт Бар на Бухарестской "замена старой сплит-системы на новую"
- Ростикс Радуга
- Кудрово "Бар Бар"
- "Контакт Баре" на Проспект Науки 23
- Южное шоссе
- Аэропорт Пулково "Лепим-Варим"
- Rostic's Юго-Запад "замена ВТЗ"
- Rostic's Тихвин "восстановление гибких воздуховодов"
- Rostic's Приморская "замена теплообменника"
- Rostic's Колпино Бульвар
- Rostic's Бенуа
- Rostic's Автово
- Пицца Хат Василеостровский
- Rostic's Народная Татнефть
- Rostic's Нарва "монтаж вентилятора"
- Rostic's Луга "монтаж зонта, сеток"
- Rostic's Сосновый Бор
- Rostic's Сестрорецк
- Rostic's Площадь Восстания
- Rostic's Петроградская "диагностика вентиляции"
- Rostic's Колесо "приемка"
- Rostic's Кингисепп "замена насоса"
- Rostic's Кингисепп "работы"
- Rostic's на Заневском "замена главного вытяжного вентилятора"
- Rostic's на Менделеева Мурино "замена В1"
- Rostic's на Гаккелевской "приемка ресторана"
- Rostic's на Художников "замена насоса"
- Rostic's на Художников "установка фанкойла"
- Rostic's ВН Нехинской "то оборудования"
- Rostic's на Науки "монтаж внутренних блоков"
- Rostic's на Косыгина "замена фильтра"
- Rostic's на Кирпичном пер "демонтаж и монтаж сплит-системы"
- Rostic's на Кирочной "демонтаж старой ККБ"
- Rostic's на Каскадной "замена вентилятора"
- Rostic's на Ильюшина "приемка ресторана"
- Rostic's на ТРК Континент "приемка ресторана"
- KFC Балкания ТО приточного вентилятора
- КонтактБар на Стачек "замена вытяжного вентилятора"
- КонтактБар на Садовой "монтаж зонтов"
- КонтактБар на Садовой "замена теплообменника, насоса, фильтра"
- КонтактБар на Просвещения "монтаж сплит-систем и зонтов"
- КонтактБар на Марата "монтаж дополнительной вентиляции"
- КонтактБар на Красноармейской
- КонтактБар на Владимирской
- КонтактБар на Бухарестской "монтаж зонтов"
- Ресторан Gustogram
- Ресторан MZE Пулково "замена фильтров"
- Монтаж Щита KFC Шелл Ульянка
- Монтаж Щита KFC Колпино Бульвар Трудящихся, 12
- Пхали Хинкали Ударников 34
- KFC Нарвская, Нарвский пр. 24
- KFC Колпино посёлок Тельмана, 2Бк4
- Монтаж вентиляции в КонтактБаре Клочков
- KFC Гатчина
- KFC Выборгское шоссе монтаж VRF
- Установка кассетного кондиционера на Ветеранов 168
- Ресторан Паруса
- Ресторан на Московской
- Ресторан PORT
- Ресторан Chuck
- KFC Нарвская Замена ККБ
- KFC Культуры 21 обслуга
- KFC Замена Щит Владимирская
- Бистро Fjord
- PINE food bar
-
Квартиры
- ул Громова монтаж кондиционера
- Монтаж в квартире на ул Дыбенко
- посёлок Стрельна улица Львовская
- Монтаж бризеров на ул Лидии Зверевой
- Квартира монтаж вентиляции - Набережная реки Каменки
- Выборгское шоссе демонтаж и монтаж
- Парфёновская улица, 17
- Светлановский проспект дом 48/19 лит А
- Тихая улица, Бугры монтаж сплит-системы
- Монтаж кондиционера проспект Наставников
- Дальневосточный проспект 23 монтаж в квартире
- проспект Будённого, 24 к5
- Кронштадт, проспект Ленина 24
- Кронштадт ул. Зосимова
- улица Чирикова, 5
- Сестрорецк Рыбацкая улица 11
- Кушелевская дорога 5
- Парфёновская улица, 7
- Яхтенская улица
- Проспект Римского-Корсакова, 13
- улица Александра Матросова, 8 к3
- Приморский проспект 52
- Парфеновская монтаж бризера
- Малый проспект Васильевского острова 54
- Улица Передовиков, 1/6
- Варшавская улица 37
- Ленинский проспект, 56
- Янино-2 Рябиновая улица
- Монтаж мульти сплит-системы на Выборгском шоссе 27 к 3
- Центральная улица 3 к2
- Белевский проспект 8
- Фёдора Абрамова 16 к 1
- проспект Солидарности 21/3
- Аллея Евгения Шварца 11
- Шпалерная улица 42
- Некрасова 17
- Набережная Обводного канала 108
- Академика Павлова 6 к2
- Петровский Бульвар 2
- проспект Науки 44
- Богатырский проспект "2 квартиры"
- Монтаж кондиционера на Обуховской Обороны
- Измайловский бульвар - монтаж кондиционера
- Монтаж кондиционера на Иоанна Кронштадтского
- Пушкин Красносельское шоссе
- Пискаревский проспект монтаж Бризера
- Монтаж кондиционера на Народной
- Монтаж кондиционера ЖК Малоохтинский
- Монтаж сплит-системы на Б.Сампсоньевской
- Квартира на Петровском 28
- Квартира на Старорусский пр-т Шушары
- Октябрьская Набережная 44
- Коломяжский проспект д.13 к2
- ID Park Pobedy на Благодатной 50
- Монтаж мульти-сплит систем на Янино 1
- Пушкин, Кедринская
- Посёлок Новоселье Невская улица
- Российский проспект
- Квартира на Ворошилова 27
- Синопская квартира
- Квартира на Ворошилова 29
- Квартира в Мурино на Шоссе в Лаврики
- Квартира на Камышовай
- Квартира на Зеленогорской
- Квартира на Энгельса
- Квартира на Наличной
- Квартира на ул Пискаревской
- Квартира Искровский проспект
- Квартира на Маршала Захарова
- Квартира на Энергетиков
- Квартира на Пионерской
- Квартира на Передовиков
- Квартира на Фёдора Абрамова
- ЖК Ховрино
- Москва Никулинская "под ключ"
- ЖК Фамилия - квартира
- Многофукциональная работа в квартире на Тореза
- Монтаж мульти-сплит системы
- Установка кондиционера на квартире
- Монтаж кондиционера с приточным воздухом
- Квартира на Итальянской
- Школы
-
Коттеджи
- Кедровый проезд деревня Мистолово
- Дом Парковая 17 Пушкинский район
- улица Маршала Тимошенко, деревня Касимово
- Заречная улица в городском посёлке Фёдоровское
- Сестрорецк, проспект Красных Командиров
- Коттеджный посёлок Ландыши, Парадная улица
- коттеджный посёлок Яхт-клуб Стрелка
- Коттедж Химки
- Гатчинсикй р-н, д. Руссолово, ул. Центральная
- Южная
- Объект Лосево
- Коттедж в посёлке Бриллиант
- Коттедж Корякова
- КП Чистые Пруды
- Коттедж РСК Низино
-
Магазины
- Лэтуаль Шкиперский молл
- Рив Гош Парнас
- Фамилия ТК Форум
- IKEA
- Adidas фанкойлы ТК Сенная
- Дикси
- ТЦ «Сенная»
- БЦ Кронверк
- Ветеринарная клиника Четыре Лапы
- Rostic's Мурино
- БЦ Терминал
- Мебельный цент на Всеволожском проспекте
- Кронверк Бизнес-центр
- Терминал Бизнес-центр
- ТЦ Смайл "Familia "
- "Четыре Лапы" на Фёдора Абрамова
- "Четыре лапы" Проспект Просвещения
- «FAMILIA» пр.Науки ТЦ Торговый Двор
- Магазин «FAMILIA» ТРЦ "Питерлэнд"
- Гипермаркет Ашан Мытищи
- "Фамилия" в ТК Авеню
- Гипермаркет Ашан Лефортово
- Фамилия ТРК "Пилот" Гатчина ЛО
- Фамилия Пик, Ефимова
- "Фамилия" Континент на Байконурской
- БЦ Терминал на Говорова замена двигателей на чиллере
- Овощи на Энергетиков
- Фамилия ТЦ Невский Атриум
- ТРК Форум монтаж сплит системы
- Фамилия на Гранд Каньон "монтаж"
- Фамилия Выборг
- Familia ТЦ Галерея
- Familia ТЦ Сенная
- Familia ТЦ Ракета
- Familia ТЦ Прометей
- Familia ТРЦ Мега Дыбенко
- "Фамилия" ТРК Лондон Молл
- ТЦ Колывань
- Калининград ТЦ Европа "Фамилия"
- Фамилия "ТЦ МЕГА Самара"
- ТРК Норд "Фамилия"
- Фамилия Ленинский
- Нонтон "Кубатура"
- Дачный
- Фамилия ТЦ Бонус "диагностика чиллера"
- Фамилия ТЦ ПИК
- Фамилия Диана
- Фамилия на Гранд Каньон "замена оборудования"
- Четыре Лапы Коралева "монтаж помпы"
- Четыре Лапы на Просвещения "ТО, диагностика"
- Четыре Лапы Муринская "замена помпы"
- Четыре Лапы на Богатырском "аварийный выезд"
- "Фамилия" в ТЦ Maxi Сопот "монтаж"
- Четыре Лапы "герметизация стыка дренаж патрубка"
- Четыре Лапы "ТО систем кондиционирования"
- Четыре Лапы "обработка испарителя антибактериальными средствами"
- Четыре Лапы "Восстановление изоляции"
- Перенос внутреннего блока сплит-системы
- Четыре Лапы Монтаж тепловой завесы
- "Фамилия" Континент
- Установка настенных сплит систем Mitsubishi
- Familia ТЦ Меркурий
- "Фамилия" Эпицентр Калининград
- Спортивный магазин Forward
- "Адидас" ТЦ Июнь
- Отели
-
Госучреждения
- УРМ МФЦ д. Малое Верево
- Городская больница № 9
- Всемфитнес на просп. Испытателей 5
- МФЦ Мои Документы отдел Колтуши
- Национальный медицинский исследовательский центр имени В.А. Алмазова
- Офис на Гороховой улице
- Прокуратура на Почтамской 2/9
- Центр современного искусства имени Сергея Курехина
- Городская Мариинская больница
- Госпиталь УФСБ на Депутатской
- ООО «Медклуб»
- "ЛенАэроПроект" Испытательный центр
- ДГКБ № 5 им. Н. Ф. Филатова
- Россети "посёлок Грибное"
- Гостехнадзор города Москва
- Прокуратура на Почтамтской
- Россети "монтаж сплит-систем" Яхтенная
- Россети "монтаж сплит-систем" Красина
- АО "НИИ "Нептун"
- ФАУ «Главгосэкспертиза России»
- Госстройнадзор "перенос сплит-систем с фасада здания"
- Россети "монтаж сплит-систем" Б Сампсониевский пр
- Консультативно-диагностический центр № 85
- ООО "Приморский торговый порт"
- ГБУЗ Ленинградская областная клиническая больница
- ФГБУ ЦЛАТИ по СЗФО
- Монтаж сплит-систем в Нии Онкологии Петрова
- Клиническая инфекционная больница имени С. П. Боткина
- Университете морского и речного флота С.О. Макарова
- Центр амбулаторного гемодиализа B. Braun
- Управление Механизации № 5
- Прокуратура Центрального района города Санкт-Петербурга
- Приемная Уполномоченного по правам человека в Санкт-Петербурге
- Госучреждение
- Город Кронштадт
- Военный госпиталь
- «Реконструкция складского здания «Институт «СоюзХимПроект»
- Банки
- Многоэтажные дома
- 5 канал
-
Заводы/склады
- ЛСР Установка VRF системы
- ООО «Кулон»
- Приморский торговый порт
- Серверная на Почтовой улице 19
- Агрохолдинга «Выборжец»
- Склад ОЗОН на Садовой улице
- Цех на проспекте Стачек
- Кировское "Производственно-складское здание"
- Серверная на Московском шоссе, 151
- ООО «НПП «ЭРГ» на Репищево
- Производство Гатчина
- Дорога На Металлострой 5
- Завод ККЗ г. Колпино
- ЛСР Строительство-СЗ
- ЛСР Строительство-СЗ монтаж на центральном складе
- Завод Универсалмаш
- Софийская 96
- Северная Заря
- Производственное предприятие "Лигра"
- Органика Минеральная 32
- ЛСР Кирпичный завод
- Система аспирации на мебельной фабрике
- Производственное здание
- Караванная 14
- ИТПЗ Компрессорная
- ИТПЗ
- Версия "Поставщик молочных продуктов"
-
Офисы
- Офисное помещение ш. Революции д .3
- Серверное помещение для офиса на Большой монетной
- Офис на проспекте Обуховской Обороны монтаж/демонтаж
- Офис на проспекте Обуховской Обороны, 70 к2
- Офис на Заставской улице, 33ТА
- Почтовый проезд в Федоровском
- Лиговский проспект 237
- проспект Обуховской Обороны 70
- Дом Радио "5 Канал"
- СКА Арена помещение серверной
- Арсенальная 25 к3
- БЦ Grani на Большой Зелениной 24
- "Лаборатория" Стрельна, ул.Фронтовая
- Лиговский проспект 266
- ООО "ИПМ" дорога на Металлострой
- Сплит-система LS-HE18KDE2/LU-HE18KDE2
- Красногвардейская площадь Помещение КСС
- Офис на Седова
- ЛенЭнерго
- Установка сплит-систем на объекте ЛСР
- СК-Титан Лесопарковая 4
- ЛСР Установка кондиционеров
- Кэт
- БЦ Сокол перевес кондиционеров
- Вентиляция
- Салоны
- РЕКОНСТРУКЦИИ
Заказать звонок
Задать вопрос
