Что такое микроклимат помещения? Под данным понятием подразумевается сочетание показателей влажности, температуры, а также скорости движения воздушных потоков, которое должно быть приведено в соответствие с нормативами ГОСТ. Оптимальным считается микроклимат, позволяющий человеку чувствовать себя максимально комфортабельно. То есть, человеку не должно быть холодно или жарко, он не должен чувствовать сквозняков, а его дыхание не должно быть затрудненным. Управление микроклиматом в бытовых условиях может осуществляться при помощи трех видов систем: отопления, кондиционирования и вентиляции. При этом обеспечение нормального самочувствия всех обитателей помещения будет связано не только с достижением приятного температурного режима, но и с вопросом достаточного обновления воздушных масс внутри помещения.
Состав воздуха в помещении, а также его температура и влажность, постоянно изменяются. Все обитатели апартаментов, включая домашних животных и даже растения, активно вбирают в себя кислород и выдыхают вредный углекислый газ. При этом тот воздух, который мы выдыхаем, включает в себя и водяной пар. И чем больше в доме «потребителей кислорода», тем более влажным будет становиться воздух. На уровень влажности также могут влиять процессы приготовления пищи, использование газового оборудования, высушивание постиранного белья, набранная в ванну вода и т.д.
Слишком большая влажность, в сочетании с малым количеством кислорода, приводит к ухудшению самочувствия обитателей дома и общей спертости внутреннего воздуха. Помните, что большая влажность – это еще и быстрое разрушение строительных материалов, использованных для возведения дома. Сталь будет ржаветь, а древесина гнить. Влажная среда также является подходящей для размножения грибка, плесени и болезнетворных бактерий. При этом регуляция влажности воздуха в частном доме является вопросом решаемым, для чего нужно оборудовать тщательно продуманную и грамотно функционирующую вентиляционную систему. С ее помощью можно будет не только обновлять воздушные массы, но и защищать помещение от сквозняков, характерных для обычного проветривания путем распахивания окон.
Естественные и принудительные вентиляционные системы
Функционирование естественной вентиляции обеспечивается физическими принципами, а также гравитационным воздействием. Чем выше от уровня земли, тем более низким будет становиться давление воздуха. И если вы устанавливаете вытяжную вертикальную трубу, то воздух в ней будет двигаться в соответствии с рассмотренным физическим законом. Разность в давлениях будет двигать воздух по направлению от обрасти более высокого давления (низ трубы) к более низкому давлению (верх трубы). Как результат, в трубе возникнет эффект под названием «тяга». Естественная или гравитационная вентиляция активно использует принцип тяги для обеспечения воздухообмена. Вентиляционный канал вертикального типа нижним концом упирается в жилое помещение, а его верхний конец возвышается над кровлей.
Преимущества естественной вентиляции
- Энергонезависимость. В рассматриваемых системах не используется оборудование, зависящее от электричества (вентиляторы, механизмы и т.д.).
- Бесшумность. Поскольку в системе нет вентиляторов, то и шуметь здесь нечему.
- Простая конструкция. В составе нет быстро изнашивающихся элементов.
- Легкость обслуживания. Естественную вентиляцию не нужно ремонтировать или менять какие-либо детали. Единственное, что нужно – это следить за чистотой вытяжной трубы.
Недостатки естественной вентиляции
- Недостаточная эффективность. Степень эффективности работы естественной вентиляции определяется временем года и погодными условиями. Так, на мощность воздухообмена может влиять сила ветра, разница в температурных режимах, уровень атмосферного давления и т.д. Зимой теплый воздух стремится оказаться как можно выше, что делает работу естественной вентиляции максимально эффективной. Летом естественная вентиляция также работает нормально, но при условии, что вы будете поддерживать температуру в комнате на более низком уровне в сравнении с жарким уличным воздухом. В демисезонье, когда температура в помещении и на улице примерно одинаковая, с эффективностью естественной вентиляции могут быть проблемы.
- Недостаточная производительность. Не имея в своем составе механизированных элементов, естественная вентиляция отличается низким уровнем производительности, с невозможностью перемещения воздушных масс по вентиляционному каналу на высоких скоростях.
- Конструктивные сложности. Для обеспечения достаточной разности давлений между нижней и верхней частью вентиляционного канала приходится располагать вытяжную трубу как можно выше, над кровлей.
Принудительная вентиляция
Если встроить в систему естественной вентиляции достаточно мощный вентилятор, то это уже будет принудительная вентиляция, то есть вентиляционная схема, в рамках которой обеспечивается принудительный воздухообмен. В подобных условиях вентиляторы будут гарантировать достаточную производительность и эффективность вентиляционной схемы, вне зависимости от уровня тяги или погодных условий на улице.
Преимущества принудительной вентиляции
- Независимость. Принудительная вентиляция будет хорошо работать вне зависимости от того, какая нынче погода за окном. Время года также не играет никакого значения.
- Регулируемость. Интенсивность осуществляемых воздухообменных процессов поддается регулированию, включая возможность автоматизации данной работы, при подключении датчиков температуры, влажности и освещенности.
- Компактность. В сравнении с естественной вентиляцией, многие модели принудительных вентиляционных систем характеризуются меньшими габаритами. Особенно это касается воздуховодов.
Недостатки принудительной вентиляции
- Энергозависимость. Для работы вентиляторов и других механизмов требуется подключение к электропитанию.
- Обслуживание. Необходимо периодически осуществлять обслуживание вентиляционных элементов, со своевременной заменой механизмов, которые износились и вышли из строя.
Приточная и вытяжная принудительная вентиляция
Как мы уже выяснили, основным предназначением современной системы вентиляции является обновление воздушной массы. Это значит, что одновременно с удалением отработанного воздуха в помещение должен поступить аналогичный объем воздуха свежего. Поэтому вентиляционная схема должна включать в себя не только вытяжную, но и приточную систему. При этом в конструктивном отношении указанные системы имеют определенные отличия.
Вытяжная вентиляция
Система представляет собой одну или несколько вентиляционных труб вертикального расположения, предназначающихся для отвода грязного воздуха на улицу, то есть за пределы помещения. Движение воздуха будет обеспечиваться естественной разностью в уровнях давления, характерных для обоих концов трубы вытяжки. В этом отношении схема полностью вторит естественной вентиляции. Но, для обеспечения более эффективного отвода отработанного воздуха, с достижением требуемой производительности и показателей воздухообмена, в систему может встраиваться вентилятор, запускающий соответствующие процессы в принудительном порядке. Вы наверняка видели вентиляционные решетки в туалете или на кухне. Это и есть вытяжная вентиляция, которая, при необходимости, может оборудоваться вентиляторами. При этом вентиляционные механизмы рекомендуется располагать не на входе, а на выходе вытяжной трубы, то есть на кровле. В этом есть свои преимущества.
- Вентилятор сможет обрабатывать все каналы вентиляции одновременно, если они подключены в единую систему вытяжки.
- Шумный вентилятор не нарушит покоя обитателей дома.
- Замена или ремонт вентилятора будут облегчены благодаря наличию свободного доступа к механизму.
Современные модели крышных вентиляторов могут работать как в сильный мороз, так и в мощную жару, вплоть до прямого контакта с летними солнечными лучами. При этом регулирование воздухообмена будет доступно в диапазоне от 0 до 400 кубометров в час, в зависимости от насущных потребностей.
Приточная вентиляция
За счет работы соответствующего оборудования становится возможным обеспечить поступление свежего уличного воздуха в помещение в необходимом объеме. Под приточной вентиляцией может подразумеваться как отверстие в окне/стене, так и более сложные в конструктивном отношении решения, позволяющие очищать, нагревать или охлаждать поступающий воздух. В естественных системах вентиляции притоку уделяется не настолько много внимания, как вытяжке. И раньше это было вполне допустимо, поскольку неплотно примыкающие дверные и оконные конструкции позволяли обеспечить помещение достаточным количеством уличного воздуха. Когда же в мир пришли герметичные пластиковые окна, функционировать перестал не только приток, но и вытяжка. Как следствие, атмосфера в помещениях начала становиться спертой, застойной, насыщенной чрезмерной влагой.
Решить указанную проблему призваны современные системы приточной вентиляции. В самом простом варианте они представляют собой специальные оконные или стеновые отверстия горизонтального типа, которые прикрываются специальным клапаном с фильтрами. Благодаря фильтрационной системе становится возможным защитить помещение от насекомых, пыли и грязи. Вдобавок, конструкция имеет возможность регулирования воздушного потока. Рассматриваемые клапаны отличаются простотой монтажа, низкой стоимостью и отсутствием необходимости задействования электричества. Но очистить воздух в достаточном порядке, равно как и нагреть его, они не смогут. Впрочем, существуют более дорогие и сложные приточные модели клапанов со сменными фильтрами. Они могут отфильтровать не только пыль, но и такие мелкофракционные объекты, как цветочная пыльца. Недостатком рассматриваемых конструкций является отсутствие влияния на температуру воздуха, который проходит сквозь них. То есть, чтобы не переохладить помещение в зимний период, клапан придется полностью закрыть.
Проветриванием и освежением воздушной массы внутри помещения может заняться такое устройство, как бризер. Прибор, отличающийся достаточной компактностью, ставится на место приточного клапана. Он сможет не только забрать уличный воздух в достаточном объеме, но и качественно его очистить, а также нагреть до нужной температуры, если в том возникнет необходимость. По сути, бризер – это продвинутый аналог форточки, который фильтрует воздушные массы в помещении путем работы в режиме рециркуляции. Из недостатков бризеров можно отметить существенное энергопотребление, если устройство будет работать в режиме нагрева воздуха. Плюс, увеличение мощности воздухообмена приведет к более активному вытеснению теплого воздуха из помещения через вытяжную трубу. А значит уровень теплопотерь для дома существенно возрастет. Чтобы уменьшить энергопотребление приточной вентиляции, а также сократить уровень теплопотерь, в вентиляционные системы встраиваются рекуператоры.
Вентиляция и сохранение тепла
Эффективная вентиляция, работа которой была грамотно налажена, сможет обеспечить жилой дом достаточным количеством свежего воздуха. Но в морозные зимы ее использование приведет к повышению теплопотерь. Теплый домашний воздух отводится через вытяжку, а на его место приходит более прохладный воздух с улицы. По сути, ваше драгоценное накопленное тепло просто вылетает в трубу, что повышает расходы на отопление помещения. Можно снизить теплопотери путем перекрытия каналов вентиляции, но это снизит интенсивность воздухообмена, плюс ухудшит внутренний микроклимат в помещении. Воздух начнет наполняться водяным паром, углекислым газом, неприятными запахами.
Решением данной проблемы является встраивание в вентиляционную схему рекуператоров – специальных теплообменников, сквозь которые будет проходить как входящий, так и исходящий воздушный поток. При этом рассматриваемые потоки не смешиваются. Они отделены специальными стенками высокого уровня теплопроводности, что позволяет им обмениваться друг с другом тепловой энергией. Чтобы повысить эффективность и скорость теплообмена, канальные стенки оснащаются ребрами, а форма вентиляционных каналов делается более сложной, искривленной. Это позволяет увеличить путь прохождения воздушного потока, который, вследствие, отдаст и получит большее количества тепла. Говоря простыми словами, отводящийся теплый воздух будет постепенно отдавать свое тепло поступающему холодному воздуху через ребристые стенки. И свежий воздух будет поступать уже в прогретом состоянии, что и приводит к серьезному снижению теплопотерь дома.
Модели рекуператоров могут быть достаточно компактными. Их устанавливают в наружную стену жилого дома, для чего там прорезается круглое отверстие не слишком большого диаметра. При этом имеется возможность ступенчатой регуляции производительности вентилятора, что позволяет снизить электрическую мощность и сохранить высокий уровень коэффициента полезного действия. Бризеры также могут оснащаться системой рекуперации. Но, обратите внимание, что данные устройства могут обслужить только одно помещение. А это значит, что в каждой комнате нужно ставить отдельный бризер. Если вы хотите, чтобы эффективная вентиляция была обеспечена для всего дома в целом, задумайтесь об установке централизованной системы вентиляции.
Вентиляция централизованного типа
Приточные и вытяжные вентиляционные схемы для загородного дома могут реализовываться в рамках единой системы вентиляции централизованного типа. Данное решение обеспечивает возможность автоматизации управления вентиляционным оборудованием, с изменением интенсивности его работы в зависимости от определенных условий. Это может быть уличная температура, температура в помещении, уровень влажности, время суток и т.д. Если в систему будет встроен рекуператор, это позволит более эффективно использовать систему отопления в зимний период, а также оптимизировать работу кондиционеров в летнюю жару. Современные вентиляционные системы обеспечивают очистку и нагрев поступающего свежего воздуха, с удалением загрязненных воздушных масс без использования дополнительных вентиляционных механизмов. Коэффициент полезного действия рекуператора может достигать 90 процентов, что позволяет снизить теплопотери через вентиляционную систему в десять раз.
Преимущества вентиляции централизованного типа
- Возможность сбалансировать приток и вытяжку.
- Нет необходимости монтировать отдельные вентиляционные устройства для каждой комнаты.
- Гибкое и простое управление вентиляционным оборудованием, с возможностью использования дистанционных устройств.
- Возможность автоматизации изменения рабочих режимов в соответствии с сигналами, исходящими от датчиков температуры, влажности, углекислого газа и т.д.
- Компактные габариты блока вентиляции, с возможностью размещения под потолком.
Недостатки вентиляции централизованного типа
- Необходимость грамотной разработки вентиляционного проекта в соответствии с индивидуальными параметрами каждого загородного дома.
- Монтаж вентиляционных каналов должен осуществляться на этапе возведения дома или его черновой отделки. Встраивание каналов в готовый отделанный дом – задача не из легких.
- Установочные процедуры должны осуществляться высококвалифицированными специалистами.
Вентиляция помещений в зависимости от их функционального назначения
Стоит признать, что какой-то единой вентиляционной схемы, универсально подходящей под все помещения частного дома, не существует. Вентиляционные решения будут меняться в зависимости от функционального назначения той или иной комнаты. Далее мы представим несколько обобщенных примеров, которые помогут вам понять базовые принципы обустройства вентиляции, для последующего применения в своем собственном доме.
Жилые помещения
В теплое время года поступление свежего воздуха можно обеспечить через открытую форточку или оконную створку. В холодное время года этот процесс обеспечивают приточные вентиляционные каналы, которые могут размещаться в оконных рамах или в наружных стенах. На каналы ставятся приточные клапаны, бризеры или рекуператоры. Отработанный воздух может выходит в коридор через дверь. Только стоит убедиться в том, что дверной проем пропускает воздух даже тогда, когда дверь закрыта. Чтобы добиться соответствующего эффекта, можно оставить под дверью небольшую щель, ширина которой составляет 1 сантиметр.
Кухня
Когда вы готовите пищу, в атмосферу помещения выделяется водяной пар и не самые приятные запахи. Как следствие, кухня должна оборудоваться вытяжным устройством, которое располагают над электрической или газовой плитой. Вытяжку подключают к вентиляционному каналу, работающему на отвод отработанного воздуха. При этом устройству не обязательно работать круглосуточно. Оно будет включаться по мере надобности. Эффективность вытяжного оборудования определяется конструктивным исполнением, а также высотой расположения прибора над кухонной плитой. Отметим, что даже самые современные приборы работают с коэффициентом полезного действия около 70 процентов. То есть, треть вредных веществ, выделяющихся нагревательными приборами и готовящимися продуктами, не будут уловлены вытяжкой и проникнут в атмосферу помещения. Так что, одной вытяжкой на кухне обойтись не получится. Одновременно нужно оборудовать кухонное помещение системой полноценной вытяжной вентиляции. И, разумеется, для ее стабильной работы, нужно также наладить приток воздуха путем формирования приточного канала в том или ином виде.
Туалет и ванная комната
Ванная комната по умолчанию отличается высоким уровнем влажности. Но нельзя сказать, что влажность здесь постоянно находится на 100-процентном уровне. Когда помещением никто не пользуется, влажность вполне может быть приближенной к нормальной. Так что, постоянной работы вентиляционного оборудования здесь не требуется. Основной задачей налаживаемой в ванной вентиляции должна являться возможность быстрого удаления избыточной влажности в кратчайшие сроки, после чего работа вентиляции может быть временно прекращена. Вентиляция в ванной комнате может быть обеспечена с помощью установки дополнительного вентилятора нужного уровня производительности, включение которого осуществляется по мере надобности. К примеру, можно поставить дорогой прибор автоматизированного типа, который будет сам включаться тогда, когда ему об этом скажет встроенный датчик влажности. Но не впадайте в крайность, устанавливая неустанно работающее вентиляционное оборудование. Оно будет слишком интенсивно откачивать теплый воздух, в результате чего пользоваться ванной комнатой будет не так уж комфортно.
Что касается санузлов, то здесь приточная вентиляция не требуется. Вместо нее можно сделать 2-сантиметровый зазор между дверью и полом, чего будет вполне достаточно. Если не нравится зазор, можете поставить в нижней части двери вентиляционную решетку, которая будет выполнять те же функции, с поступлением свежего воздуха из коридора. Если в туалете наблюдаются постоянно витающие неприятные запахи, это может являться следствием ошибок, допущенных на этапе проектирования канализации. Внутренняя канализационная полость должна отделяться от туалетной комнаты гидрозатворами. Снижение давления в канализационной полости приводит к уходу воды из области гидрозатвора, в результате чего неприятные канализационные запахи начинают распространяться по помещению. Чтобы гидрозатвор работал нормально, между канализацией и атмосферой должен осуществляться сообщение. Для этого канализационный стояк должен своим верхним концом выводиться на крышу дома.
Котельные и бойлерные помещения
Помещениям технического назначения в вопросе оборудования вентиляционными схемами должно уделяться максимально большое внимание. Чтобы газ в котле имел возможность нормально гореть, необходимо обеспечить помещение достаточным количеством свежего воздуха, с одновременным отведением продуктов горения за пределы жилого дома. Если внимательно почитать руководство по эксплуатации котельного оборудования, то там можно будет найти все требования к оборудуемой вентиляции. Именно эти данные стоит брать за основу при составлении вентиляционного проекта. Не смешивайте вентиляцию и дымоход. Это абсолютно разные элементы, причем различия наблюдаются не только в использующихся материалах, но и в конструктивном отношении.
Подвалы и цокольные этажи
Грамотная вентиляция рассматриваемых помещений поможет справиться с образованием конденсата, который в больших количествах может привести к неуклонному разрушению используемых строительных и облицовочных материалов. Из грунта в воздух также может выделяться радиоактивный газ под названием радон, который несет опасность не только для домашних животных, но и для человека. Этот газ тяжелее воздуха, поэтому основным сосредоточением радона являются именно цокольные этажи и подвалы. Как следствие, установка специальных вентиляционных отверстий должна производиться в обязательном порядке. Настоятельно рекомендуется оборудовать отверстия воздухозаборниками, которые поднимаются выше возможного снегового покрова. Это позволит обеспечить эффективное функционирование вентиляции и в зимний период.
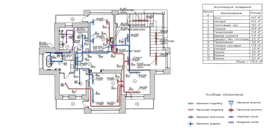
Составление проекта системы вентиляции
Правильно работающая вентиляция является необходимым условием отличного самочувствия всех обитателей загородного дома. С помощью вентиляции можно будет заполнить помещение чистым воздухом, с поддержанием нормального уровня влажности, защитой от переохлаждения и образования сквозняков. Но, стоит признать, что оборудование грамотной вентиляции – задача не из легких. Требуется учесть большое количество факторов, произвести индивидуальные расчеты и разработать оптимальное решение как с финансовой, так и с технической точки зрения. Поэтому, проектирование вентиляции должно доверяться только профессиональным специалистам, с возможным подключением к проекту архитекторов, строителей и контролирующих инспекторов, осуществляющих согласование составленной проектной схемы.

